Property Description
Charming European-style chalets set among a lush landscape provide a luxurious oasis at the end of a busy day. This is Stoney Creek, an apartment and townhome community in Greece – a sought-after suburb of Rochester, New York. Our elegant, brick buildings feature mansard roofs, dormer windows, and porticos that create a distinctive community to call home. Stoney Creek offers one- and two-bedroom apartments and townhomes in a park-like setting. Our community includes a fitness center, swimming pool, clubhouse, and business center.
Office Hours
Monday
8:00am - 5:00pm
Tuesday
8:00am - 5:00pm
Wednesday
8:00am - 5:00pm
Thursday
8:00am - 5:00pm
Friday
8:00am - 5:00pm
Saturday
CLOSED
Sunday
CLOSED
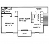
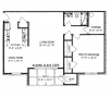
Floor Plan Details
Community Amenities
Business Center
Clubhouse
Extra Storage
Fitness Center
24-Hour Emergency Maintenance
On-Site Property Manager
Swimming Pool
Park-Like Setting
Laundry Facilities in Each Apartment Building
Trash Removal Provided On-Site
Parking Lot Lighting
Apartment Amenities
A/C
Balcony
Bathtub/Shower
Cable Available
Carpeted Floors
Ceramic Tile Flooring
Covered Porch or Balcony
Dining Area
Dishwasher
Garbage Disposal
Heat & Hot Water Included w/Select Units
Heating
Intercom System
Keyed Access Front Door
Kitchen
Microwave
Porch
Private Entrances
Refrigerator
Stove
Walk-In Closets
Pet Policy
Pets Allowed
Dogs:1 dog permitted
Restrictions: Must have paperwork, spayed or neutered.
Size: Small, Weight: under 30 lbs.
Rent: $50.00 per month.
Cats:
Up to 2 permitted. Price is per cat.
Restrictions: Must have paperwork, spayed or neutered.
Weight: under 20 lbs.
Rent: $30.00 per month.









